物件名称
フレスコア旭橋 605号室
所在地
沖縄県那覇市旭橋112-29
販売価格(税込)
5,880万円
交通
【モノレール】「旭橋駅」より徒歩約5分
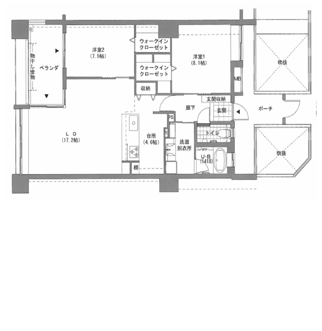
間取り
2LDK
間取り詳細
洋8.1・洋7.5・LDK21.8
専有面積
88.32㎡(26.71坪)
バルコニー面積
9.67㎡
建物構造
鉄筋コンクリート造
建物階
地上18階建/6階部分
総戸数
78戸
築年月
平成21年7月
土地権利
所有権
駐車場
1台5,500円※屋内並列
現況
空室
引き渡し
要相談
取引形態
仲介
備考






ゆいレール「旭橋駅」まで徒歩5分!那覇バスターミナル、那覇OPA、その他飲食店などが徒歩圏内にそろった利便性の高いマンションです!★お部屋は約88㎡の広々2LDK!★各居室にはウォークインクローゼット完備!★広々した専用ポーチ付き!★県内唯一の免振構造分譲マンションです!