物件名称
アルファスマート津嘉山 303号室
所在地
沖縄県島尻郡南風原町津嘉山1507-1
販売価格(税込)
3680万円
交通
「津嘉山」バス停徒歩約1分
間取り
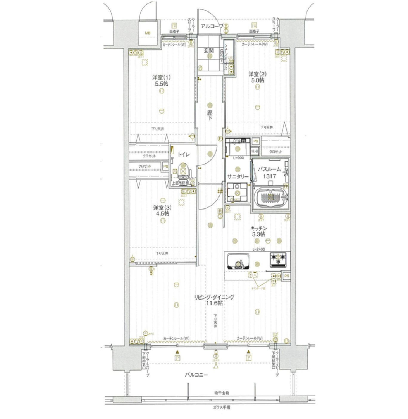
3LDK
間取り詳細
洋5.5帖、5.0帖、4.5帖、LDK14.9帖
専有面積
63.93㎡
バルコニー面積
10.98㎡
建物構造
鉄筋コンクリート造
建物階
9階建/3階部分
総戸数
45戸
築年月
平成31年2月
土地権利
所有権
駐車場
10500円
現況
所有者居住中
引き渡し
要相談
取引形態
専任
備考



















南風原町津嘉山で中古マンションご紹介!★対面式カウンターキッチンで使い勝手便利!★サンエーも近く、日々のお買い物にも便利な立地!★国道329号線も近く、通勤にも便利!★敷地内駐車場1台確保!ぜひご検討ください♪